|
| 所在地 | 高知県吾川郡いの町 枝川 |
| 交通 | とさでん交通伊野線 枝川駅 徒歩4分 |
| 築年月 | 構造 | 木造 | |
| 階建 | 地上 2階 | 部屋階数 | |
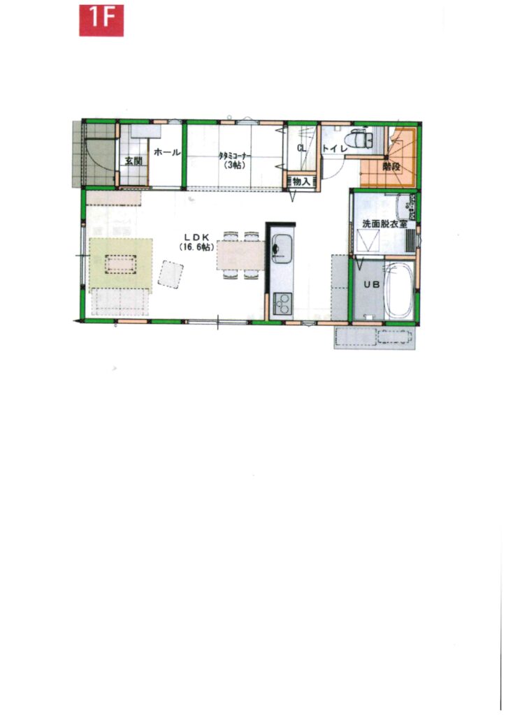
| 面積 | 77.83m² 土地 132.54m² | 建蔽率/容積率 | 60% / 100% |
| 物件番号 | a-1580 | ||
| 設備・条件 | 建物本体標準仕様 ■改正省エネ基準適合住宅 ■省令準耐火対応 ■JAS規格集成材 ■建物保証20年(住宅瑕疵保険10年+延長保証10年) ■地盤保証20年 ■住宅設備延長保証10年 ■メンテナンス保証サービス2年 ■住宅トラブル応急対応サポート5年 ■オール電化住宅仕様 ■アルミ樹脂複合サッシ LOW-Eペアガラス ■食器洗浄乾燥機 ■IHクッキングヒーター ■浴室暖房乾燥機 ■玄関収納 ■シャワートイレ 標準附帯工事 ■エコキュート本体(370ℓ普通型フルオート) ■照明器具一式(全室LED) ■カップボード ■カーテンレール工事 ■境界ブロック・フェンス工事 ■車庫土間コンクリート打ち、建物外周砕石入れ ■TVアンテナ工事(地デジのみ) |
||
価格
築年月














