3,250万円借入3年固定・金利0.85% 保証料別
月々約89,488円・35年払い ボーナス払い無
高知市神田の新築住宅3,250万円です。土地(区画)面積:120.09㎡ (約36.32坪)。周辺環境は、鴨田小学校、西部中学校、サニーマート神田店、ダイレックス神田店。高知の不動産情報は、メイクハウジング(不動産屋)でどうぞ!
〒780-0964    高知県高知市横内116-1
『メイクハウジング』へお問い合わせ下さい
フリーダイヤル  0120-686-885
高知の不動産情報⇒メイクハウジングへ!新築・中古住宅、マンション売買!
高知市のメイクハウジンング(不動産)は、高知(高知市)の不動産物件の新着情報を掲載しています。高知(高知市)の新築・売家・マンション、土地など。
|
| 所在地 | 高知県高知市神田 |
|---|---|
| 交通 | バス(吉野別れ 停歩5分) |
| 築年月 | 新築/中古 | ||
|---|---|---|---|
| 面積 | 計測方式 | ||
| バルコニー | 向き | ||
| 建物階数 | 地上2階 | 部屋階数 | |
| 建物構造 | 木造 | ||
| 敷地全体面積 | 延べ床面積 | 85.49m² | |
| 建築面積 | 43.88m² | ||
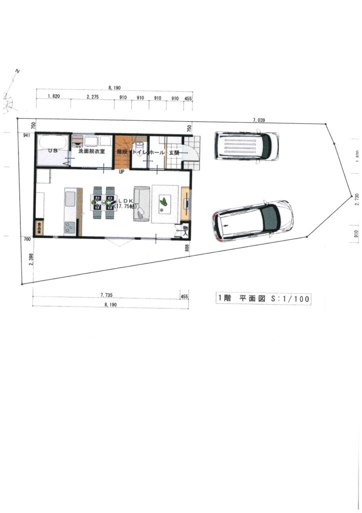
| 間取内容 |
2階)6.25洋・4.5洋・4.5洋・納戸・WIC・WC 1階)17.75LDK |
||
| 駐車場 | 取引態様 | 仲介 | |
| 引渡/入居時期 | 相談 | 現況 | 未完成 |
| 地目 | 宅地 | 用途地域 | 準工業 |
| 都市計画 | 市街化区域 | 地勢 | 平坦 |
| 土地面積 | 120.09m² | 土地面積計測方式 | 公簿 |
| 建ぺい率 | 60% | 容積率 | 200% |
| 土地権利 | 所有権 | 接道状況 | |
| 周辺環境 |
神田小学校 西部中学校 |
||
| 設備・条件 | IHコンロ 長期優良住宅(耐震等級3・耐熱等級5) 建物保証20年(住宅瑕疵保険10年+延長保証10年)地盤保証20年 エコジョーズ・幹太くん |
||
| 物件番号 | |||
| 特記事項 | 建築確認番号第R07高知建技508号 | ||
3,250万円借入3年固定・金利0.85% 保証料別
月々約89,488円・35年払い ボーナス払い無
高知市神田の新築住宅3,250万円です。土地(区画)面積:120.09㎡ (約36.32坪)。周辺環境は、鴨田小学校、西部中学校、サニーマート神田店、ダイレックス神田店。高知の不動産情報は、メイクハウジング(不動産屋)でどうぞ!
有限会社 メイクハウジング
〒780-0964高知県高知市横内116-1
TEL : 088-843-6868 FAX : 088-843-6555
(公社)高知県宅地建物取引業協会会員
高知県知事免許(4)2461号
![]()