高知市南万々建築条件付土地です。土地面積(区画):168.96㎡(約51.11坪)。周辺環境は、小高坂小学校、城北中学校、サニーマート中万々店、ダイソー高知万々店、四国銀行万々支店。高知の不動産情報は、メイクハウジング(不動産屋)でどうぞ!
高知市南万々建築条件付売地D号地 23,021,460円 3.3㎡@450,430円 168.96㎡(約51.11坪)
|
| 所在地 | 高知県高知市南万々 |
|---|---|
| 交通 | バス(東福井 停歩3分) |
| 駐車場 | 取引態様 | 仲介 | |
|---|---|---|---|
| 引渡/入居時期 | 相談 | 現況 | 更地 |
| 地目 | 宅地 | 用途地域 | 第一種中高層住居専用 |
| 都市計画 | 市街化区域 | 地勢 | 平坦 |
| 土地面積 | 168.96m² | 土地面積計測方式 | 公簿 |
| 建ぺい率 | 60% | 容積率 | 200% |
| 土地権利 | 所有権 | 接道状況 | 四方 |
| 接道方向1 | 西 | 接道間口1 | |
| 接道種別1 | 公道 | 接道幅員1 | |
| 周辺環境 |
小高坂小学校 城北中学校 |
||
| 設備・条件 | |||
| 物件番号 | |||
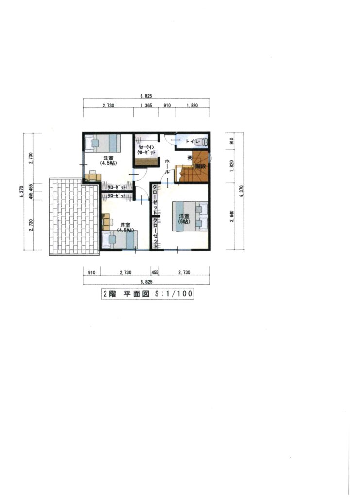
| 特記事項 | 木造2階建3LDK86.11㎡の建物を建築して総額4,440万円(税込)です。 | ||
Loading...
※物件掲載内容と現況に相違がある場合は現況を優先と致します。
※各物件ともに、現在も営業活動中であります。お客様のお問い合せの際、商談中又は成約済の事があります。
その旨、どうぞご了承くださいませ。
※各物件ともに、現在も営業活動中であります。お客様のお問い合せの際、商談中又は成約済の事があります。
その旨、どうぞご了承くださいませ。
問合せ先
有限会社 メイクハウジング
〒780-0964高知県高知市横内116-1
TEL : 088-843-6868 FAX : 088-843-6555
(公社)高知県宅地建物取引業協会会員
高知県知事免許(4)2461号
この物件のお問い合わせは、下にご記入、ご送信願います。
![]()



