3,180万円 借入 10年固定・金利1.30% 保証料別
月々約94.281円 35年払い ボーナス払い無し
高知県高知市福井町新築住宅です。土地面積(区画):115.70㎡(約34.99坪)。周辺環境は、旭東小学校、旭中学校、サンシャインクロバ、ドラッグセイムス福井、マック福井、四国銀行福井支店。高知の不動産情報は、メイクハウジング(不動産屋)でどうぞ!
高知市福井町新築住宅 3,180万円(税込)3LDK 115.70㎡(約34.99坪)写真更新しました。up
|
| 所在地 | 高知県高知市福井町 |
|---|---|
| 交通 | バス(奥福井西 停歩14分) |
| 築年月 | 新築/中古 | ||
|---|---|---|---|
| 面積 | 計測方式 | ||
| バルコニー | 向き | ||
| 建物階数 | 地上2階 | 部屋階数 | |
| 建物構造 | 木造 | ||
| 敷地全体面積 | 延べ床面積 | 90.25m² | |
| 建築面積 | 48.02m² | ||
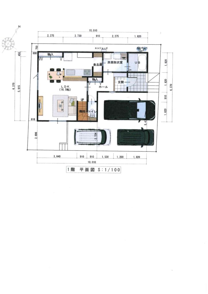
| 間取内容 |
2階)7洋・5.5洋・5.5洋・WIC・WC 1階)16.5LDK |
||
| 駐車場 | 取引態様 | 仲介 | |
| 引渡/入居時期 | 現況 | 未完成 | |
| 地目 | 宅地 | 用途地域 | 第一種低層住居専用 |
| 都市計画 | 市街化区域 | 地勢 | 平坦 |
| 土地面積 | 115.70m² | 土地面積計測方式 | 公簿 |
| 建ぺい率 | 60% | 容積率 | 100% |
| 土地権利 | 所有権 | 接道状況 | 一方 |
| 接道方向1 | 東 | 接道間口1 | 9.8m |
| 接道種別1 | 公道 | 接道幅員1 | 4m |
| 周辺環境 |
横内小学校 旭中学校 |
||
| 設備・条件 | 設備保証書・長期優良住宅認定通知書 |
||
| 物件番号 | |||
| 特記事項 | 建築確認番号第685号 | ||
Loading...
※物件掲載内容と現況に相違がある場合は現況を優先と致します。
※各物件ともに、現在も営業活動中であります。お客様のお問い合せの際、商談中又は成約済の事があります。
その旨、どうぞご了承くださいませ。
※各物件ともに、現在も営業活動中であります。お客様のお問い合せの際、商談中又は成約済の事があります。
その旨、どうぞご了承くださいませ。
問合せ先
有限会社 メイクハウジング
〒780-0964高知県高知市横内116-1
TEL : 088-843-6868 FAX : 088-843-6555
(公社)高知県宅地建物取引業協会会員
高知県知事免許(4)2461号
この物件のお問い合わせは、下にご記入、ご送信願います。
![]()




