2,590万円借入10年固定(保証料別)金利1.30%返済期間35年 月々約76,788円ボーナス払無し
高知市北金田中古住宅です。土地面積(区画):100.17㎡(約30.30坪)。周辺環境は、江陽小学校、城東中学校、フジ桜井店、よどやドラッグ南金田店、高知銀行ちより街店。高知の不動産情報は、メイクハウジング(不動産屋)でどうぞ!
〒780-0964    高知県高知市横内116-1
『メイクハウジング』へお問い合わせ下さい
フリーダイヤル  0120-686-885
高知の不動産情報⇒メイクハウジングへ!新築・中古住宅、マンション売買!
高知市のメイクハウジンング(不動産)は、高知(高知市)の不動産物件の新着情報を掲載しています。高知(高知市)の新築・売家・マンション、土地など。
|
| 所在地 | 高知県高知市北金田 |
|---|---|
| 交通 | バス(金田橋 停歩4分) |
| 築年月 | 2004/12 | 新築/中古 | 中古 |
|---|---|---|---|
| 面積 | 計測方式 | ||
| バルコニー | 向き | ||
| 建物階数 | 地上3階 | 部屋階数 | |
| 建物構造 | 木造 | ||
| 敷地全体面積 | 延べ床面積 | 96.87m² | |
| 建築面積 | 32.29m² | ||
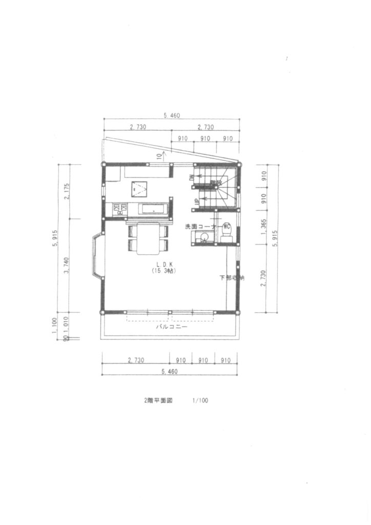
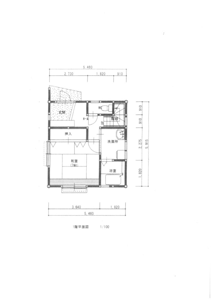
| 間取内容 |
3階)9.7洋・6.7洋 2階)15.3LDK・WC 1階)7和・WC |
||
| 駐車場 | 取引態様 | 仲介 | |
| 引渡/入居時期 | 相談 | 現況 | 空家 |
| 地目 | 宅地 | 用途地域 | 第一種中高層住居専用 |
| 都市計画 | 市街化区域 | 地勢 | |
| 土地面積 | 100.17m² | 土地面積計測方式 | 公簿 |
| 建ぺい率 | 60% | 容積率 | 200% |
| 土地権利 | 所有権 | 接道状況 | 一方 |
| 接道方向1 | 北 | 接道間口1 | 6.4m |
| 接道種別1 | 公道 | 接道幅員1 | 9m |
| 周辺環境 |
江陽小学校 城東中学校 |
||
| 設備・条件 | |||
| 物件番号 | |||
2,590万円借入10年固定(保証料別)金利1.30%返済期間35年 月々約76,788円ボーナス払無し
高知市北金田中古住宅です。土地面積(区画):100.17㎡(約30.30坪)。周辺環境は、江陽小学校、城東中学校、フジ桜井店、よどやドラッグ南金田店、高知銀行ちより街店。高知の不動産情報は、メイクハウジング(不動産屋)でどうぞ!
有限会社 メイクハウジング
〒780-0964高知県高知市横内116-1
TEL : 088-843-6868 FAX : 088-843-6555
(公社)高知県宅地建物取引業協会会員
高知県知事免許(4)2461号
![]()